(2)材料の寸法表示等



………………………………………………………………………………………………………
▲▼▲▼▲▼▲▼▲▼▲▼▲▼▲▼ 問題 ▲▼▲▼▲▼▲▼▲▼▲▼▲▼▲▼▲▼▲
………………………………………………………………………………………………………
問1 擁壁
………………
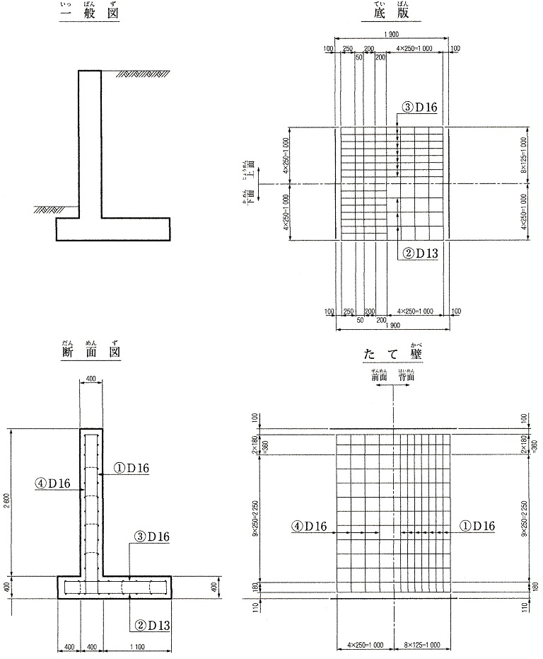
 a, 下図は,擁壁の配筋図を示したものである。
  かかと部の引張鉄筋に該当する鉄筋番号は,次のうちどれか。 (h29)



 (1)①D16
 (2)②D13
 (3)③D16
 (4)④D16

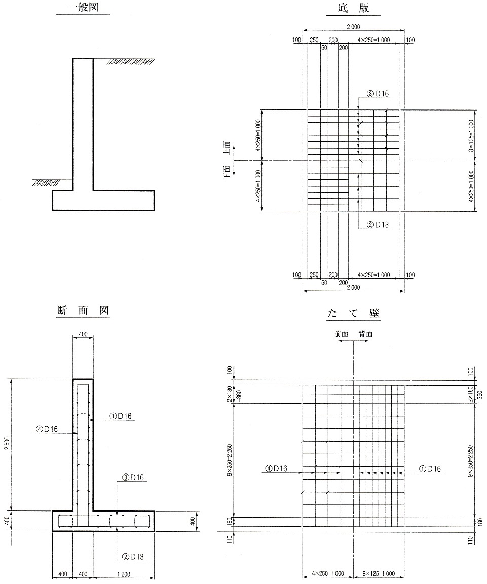
 b, 下図は,鉄筋コンクリートL型擁壁の配筋図を示したものである。たて壁とかかと版
     の引張鉄筋の組合せで,正しいものはどれか。  (r3)


 
(1)①と②
(2)①と③
(3)②と④
(4)③と④


………………………………
問2 土積図
………………
 a, 下図は,工事起点No.0から工事終点No.10の道路改良工事の土積曲線(マスカーブ)を
  示したものであるが,次の記述のうち適当でないものはどれか。 (h30)

 (1)当該工事区間では,残土が生じる。
 (2)当該工事区間では,盛土区間よりも切土区間のほうが長い。
 (3)No.0 からNo.6 は,切土量と盛土量が均衡する。
 (4)No.0 からNo.4 は,切土区間である。



………………
 b, 下図は,工事起点No.0から工事終点No.5(工事区間延長500m)の道路改良工事の土積曲線
  (マスカーブ)を示したものであるが,次の記述のうち,適当でないものはどれか。  (r2)



(1)No.0からNo.2までは,盛土区間である。
(2)当該工事区間では,盛土区間より切土区間の方が長い。
(3)No.0からNo.3までは,切土量と盛土量が均衡する。
(4)当該工事区間では,残土が発生する。


………………………………
問3 ボックスカルバート
………………
 a, 下図は,ボックスカルバートの一般図とその配筋図を示したものであるが,次の記述のうち,
  適当でないものはどれか。 (r1)



(1)ボックスカルバートの頂版の内側主鉄筋と側壁の内側主鉄筋の太さは,同じである。
(2)ボックスカルバートの頂版の土かぶりは,2.0 m である。
(3)頂版,側壁の主鉄筋は,ボックスカルバート延長方向に 250 mm 間隔で配置されてい
   る。
(4)ボックスカルバート部材の厚さは,ハンチの部分を除いて同じである。


………………
 b,  下図は,ボックスカルバートの配筋図を示したものである。この図における配筋に関
  する次の記述のうち,適当でないものはどれか。 (r4)


 
(1)頂版の主鉄筋は,径19mmの異形棒鋼である。
(2)頂版の下面主鉄筋の間隔は,ボックスカルバート軸方向に250mmで配置されている。
(3)側壁の内面主鉄筋は,径22mmの異形棒鋼である。
(4)側壁の外面主鉄筋の間隔は,ボックスカルバート軸方向に250mmで配置されている。









………………………………………………………………………………………………………
▲▼▲▼▲▼▲▼▲▼▲▼▲▼▲▼ 解答 ▲▼▲▼▲▼▲▼▲▼▲▼▲▼▲▼▲▼▲
………………………………………………………………………………………………………
問1
………………
 a, (3)
………………
 b, (2)

………………………………
問2
………………
 a, (1) 土量は不足する。
………………
 b, (2) 盛土区間は№0~№3,切土区間は№3~№5である。

………………………………
問3
………………
 a, (1) 頂版の内側主鉄筋はD19,側壁の内側主鉄筋はD13である。
………………
 b, (3)側壁の内面主鉄筋は、径13㎜の異形棒鋼である。




 ★平成28年度以前の問題と解答は、こちらをご覧ください。




Copyright (C) 2021 Hidenori Nakamura. All Right Reserved
■■■■■■■■■■■■■■■■■■■■■■■■■■■■■■■■■■■■■■■

                                     HOME